| 索引号 | 640522009/2024-00113 | 文号 | 生成日期 | 2024-04-08 11:30:00 | |
|---|---|---|---|---|---|
| 公开方式 | 主动公开 | 所属机构 | 海原县自然资源局 | 责任部门 | 海原县自然资源局 |
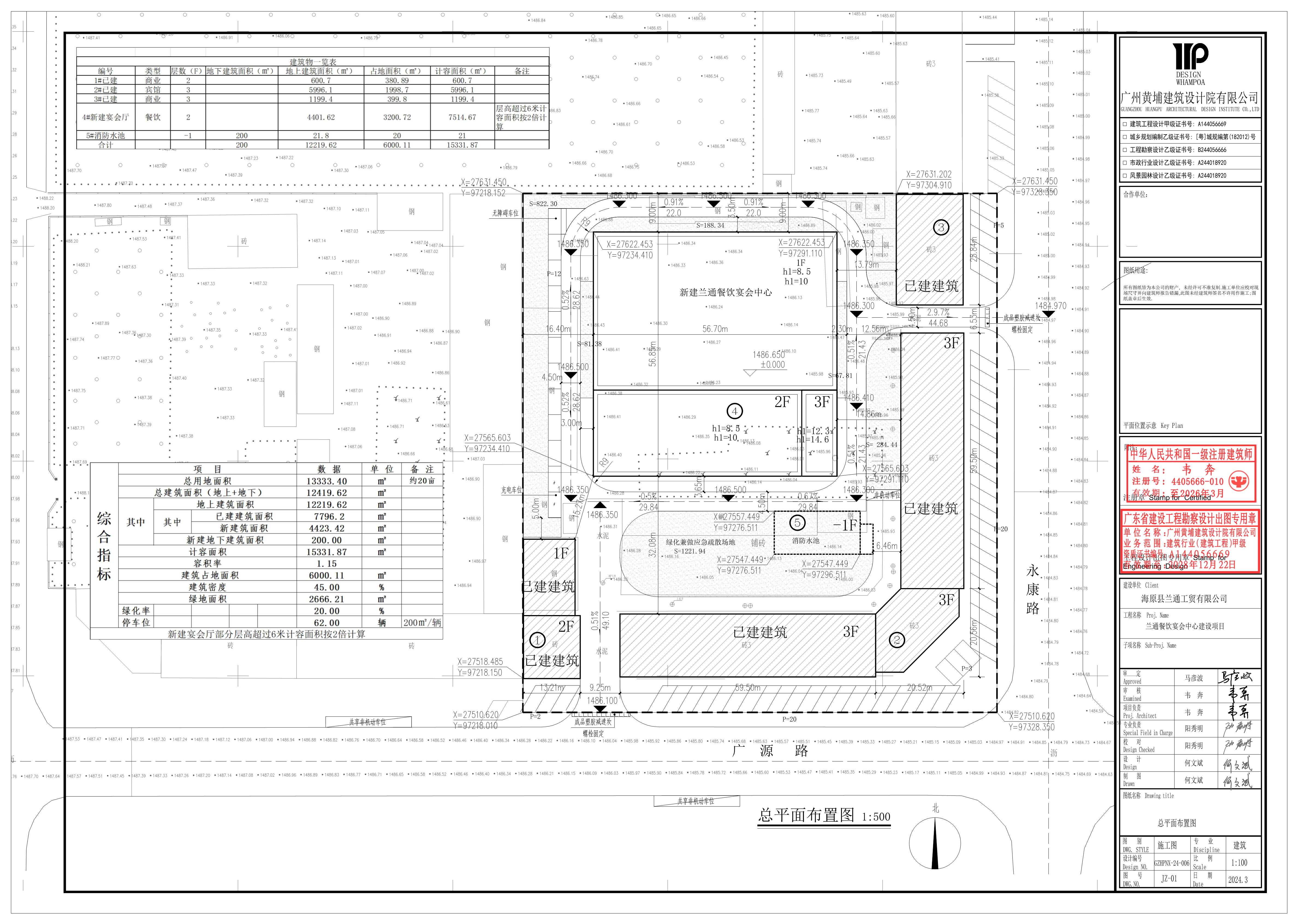
根据《中华人民共和国城乡规划法》等相关法律法规要求,为了加强城乡规划管理,提高规划透明度,维护市民对城乡规划的知情权、监督权,同时提高公众参与度,现将《兰通餐饮宴会中心建设项目》建设工程设计方案的总平面图及效果图予以公示。
项目情况介绍:项目位于海原县海兴开发区,建设内容为:新建钢框架和门式钢架混合结构宴会厅一栋,主体一层局部二层、建筑面积4401.62平米;建设消防泵房一座,地下200平米、地上21.8平米;配套建设其他附属设施。
建设单位:海原县兰通工贸有限公司
公示单位:海原县自然资源局
公示方式:海原县政府网站
联系电话:0951-4015278
公示日期:2024年4月8日-2024年4月18日



各省区市政府网站
自治区各部门网站
中卫市各部门网站